新築住宅 長野県安曇野市穂高6785-5
- 価格2898万円
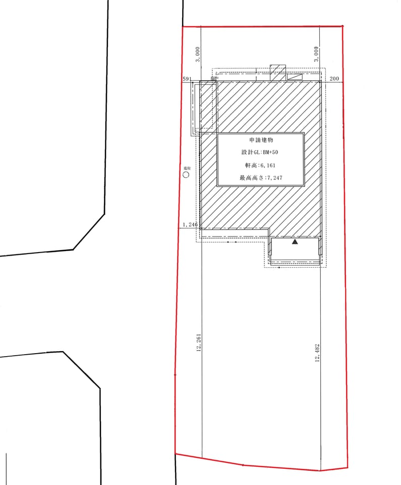
- 土地面積207.8m2
- 間取4LDK
- 建物面積106.4m2
- 通学区安曇野市立穂高南小学校(900m)
安曇野市立穂高東中学校(1400m)
最終更新日 2025年11月27日
穂高駅900m、小学校900m、中学校1400m、幼稚園・図書館・公園300m、ショッピングパーク600m、コンビニ950m、郵便局1200m 利便性の良い立地 静かな環境 陽当たり良好 家庭菜園も可能なお庭の広さです
(株)等々力不動産
0263-82-9630
ココスマを見てとお伝えください
地図・周辺環境
※物件位置が表示されていない場合があります。
また特に外部リンク先のGoogleマップでは、実際とは異なる位置が表示される場合があります。
物件の正確な位置は必ず取扱い会社へお問合せください。
(株)等々力不動産
0263-82-9630
ココスマを見てとお伝えください
物件詳細
| 価格 | 2898万円 |
|---|---|
| 土地面積 | 207.8m²(公簿) / 62.85坪 |
| 建物面積 | 106.4m² / 32.18坪 |
| 間取 | 4LDK |
| 所在地 | 安曇野市穂高6785-5 |
| 通学区 | 安曇野市立穂高南小学校(900m) 安曇野市立穂高東中学校(1400m) |
| 交通 | 電車:大糸線穂高駅 距離900m 徒歩12分 |
| 備考 | 第25NJM-10-00782号 |
| 建物構造 | 木造 |
| 建物概要 | 地上2階 |
| 駐車場 | 有 台数:2台あり |
| 下水 | 公共下水道 |
| 完成年月日 | 2026年2月 |
| 施工会社 | 株式会社リアルトハーツ |
| 土地権利 | 所有権 |
| 接道状況 | 方角:西 道路幅員:4m 公私区分:公道 接面:22.7m |
| 設備 | システムキッチン・IHクッキングヒーター・食器洗浄乾燥機・TVモニタ付きインターホン・ディンプルキー・火災警報器(報知機)・BT別室・暖房便座・温水洗浄便座・オートバス・トイレ2箇所・追焚機能・庭・ウォークインクローゼット・日当り良好・閑静住宅街・24時間換気システム・オール電化・新築時・増改築時の設計図書・給湯・照明器具付き・複層ガラス・上水道・下水道・電気・駐車場2台分 |
| 取引態様 | 専任媒介 |
| 手数料 | 手数料必要 |
| 引渡し/入居日 | 2026年2月中旬 予定 |
| 物件番号 | 446564 |
| 最終更新日 | 2025-11-27 |
























