中古住宅 長野県安曇野市穂高有明5718-150
- 価格1800万円
- 土地面積523m2
- 間取2DK
- 建物面積57.96m2
最終更新日 2026年04月18日
黒崎不動産
0263-87-0075
ココスマを見てとお伝えください
地図・周辺環境
※物件位置が表示されていない場合があります。
また特に外部リンク先のGoogleマップでは、実際とは異なる位置が表示される場合があります。
物件の正確な位置は必ず取扱い会社へお問合せください。
黒崎不動産
0263-87-0075
ココスマを見てとお伝えください
物件詳細
| 価格 | 1800万円 |
|---|---|
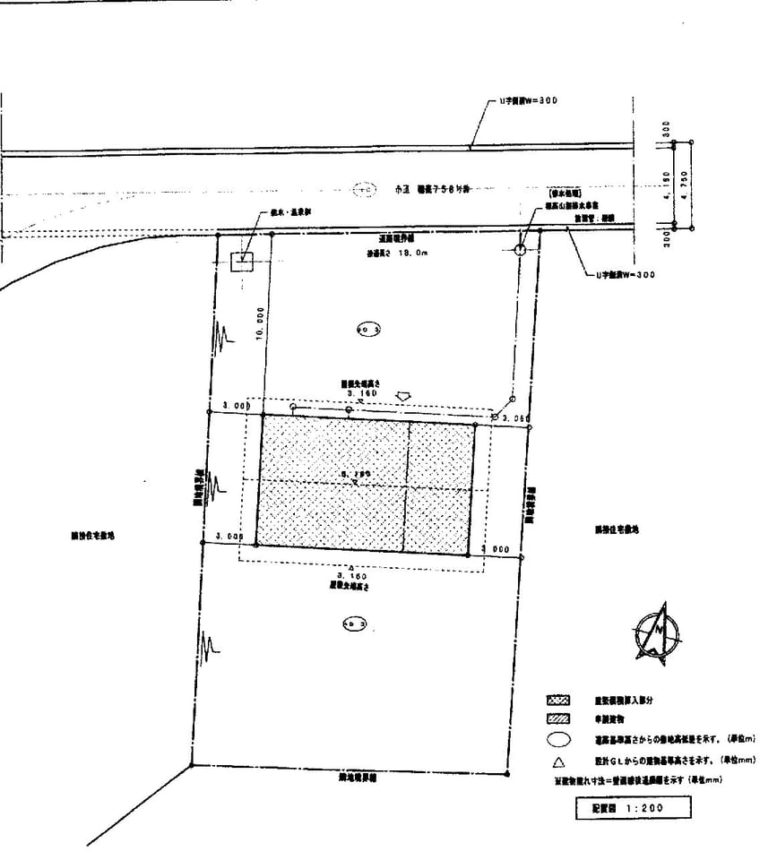
| 土地面積 | 523m²(公簿) / 158.2坪 |
| 建物面積 | 57.96m² / 17.53坪 |
| 間取 | 2DK |
| 所在地 | 安曇野市穂高有明5718-150 |
| 交通 | 電車:大糸線安曇追分駅 距離3500m 高速道路:長野道 安曇野I.C. 車19分 |
| 備考 | 現状渡し。建物表示登記申請中。 |
| 建物構造 | 木造 |
| 建物概要 | 地上1階 |
| 駐車場 | 有 台数:3台あり |
| 下水 | 集中浄化 |
| 湯権 | 込み |
| 完成年月日 | 2014年 |
| 土地権利 | 所有権 |
| その他一時金 | あり 温泉権名義変更料 55000円 |
| 接道状況 | 方角:北 道路幅員:4.7m 公私区分:公道 接面:18m |
| 設備 | BS端子・日当り良好・田舎リゾート向き・温泉付き・照明器具付き・プロパンガス・上水道・下水道・電気・駐車場3台分 |
| 取引態様 | 一般媒介 |
| 手数料 | 手数料必要 |
| 引渡し/入居日 | 相談 |
| 物件番号 | 451441 |
| 最終更新日 | 2026-04-18 |




























