住宅用土地 長野県安曇野市穂高有明 区画4
- 価格1220万円
- 坪単価11.97万円
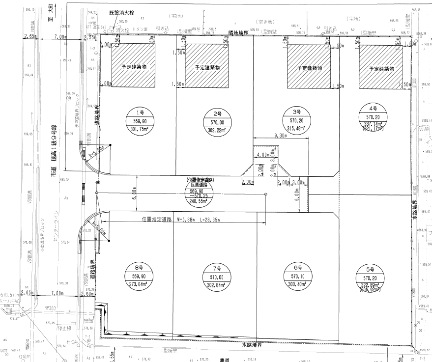
- 土地面積337.14m2
- 建蔽/容積60%/100%
- 通学区安曇野市立穂高北小学校(2600m)
安曇野市立穂高西中学校(1200m)
最終更新日 2025年10月26日
アクセスの良い立地で日当りも良好
大型スーパー、ホームセンター近くで買い物も便利
弊社ショールームすぐ近く 8区画の新規分譲地
広域農道沿いでアクセスも良く、大型スーパーへ徒歩3分の好立地全区画南北に長く、日当りも良好
建物のプランニングも現地を見ながら進められますので、具体的なイメージも湧きやすいと思います
(株)ライヴィング
担当:木島 宏
0120-900-684
ココスマを見てとお伝えください
地図・周辺環境
※物件位置が表示されていない場合があります。
また特に外部リンク先のGoogleマップでは、実際とは異なる位置が表示される場合があります。
物件の正確な位置は必ず取扱い会社へお問合せください。
(株)ライヴィング
担当:木島 宏
0120-900-684
ココスマを見てとお伝えください
物件詳細
| 価格 | 1220万円 |
|---|---|
| 坪単価 | 11.97万円 |
| 土地面積 | 337.14m²(実測) / 101.98坪 |
| 所在地 | 安曇野市穂高有明 |
| 区画番号 | 区画4 |
| 通学区 | 安曇野市立穂高北小学校(2600m) 安曇野市立穂高西中学校(1200m) |
| 交通 | 電車:大糸線穂高駅 距離2100m 徒歩32分 自動車5分 |
| 備考 | 2025年10月造成完了 全区画南北に長手の区割で日当りも良好 全8区画 990~1,220万円にて分譲中 株式会社ライヴィング建築条件付 |
| 都市計画 | 非線引区域 |
| 用途地域 | 無指定 |
| 地目 | 宅地 |
| 建蔽率 | 60% |
| 容積率 | 100% |
| 下水 | 公共下水道 |
| 最適用途 | 住宅用土地 |
| 土地権利 | 所有権 |
| 接道状況 | 方角:北 道路幅員:6m 公私区分:公道 接面:10m 位置指定あり |
| 設備 | 建築条件付き・プロパンガス・上水道・下水道・電気 |
| 取引態様 | 売主 |
| 手数料 | 不要 |
| 引渡し/入居日 | 即可能 |
| 物件番号 | 441705 |
| 最終更新日 | 2025-10-26 |

























