中古住宅 長野県安曇野市穂高有明7890番地6
- 価格3680万円
- 土地面積430m2
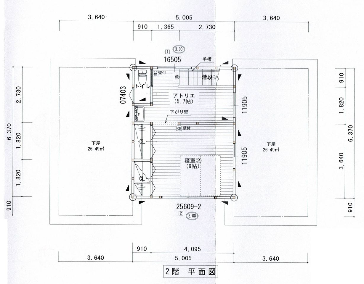
- 間取2SLDK(洋9,洋8,ギャラリー5.7,LDK24.8)
- 建物面積113.44m2
- 通学区安曇野市立穂高北小学校(4700m)
安曇野市立穂高西中学校(3400m)
最終更新日 2026年04月12日
※現在居住中につき、現地確認や内見を希望される方は、ご自身で現地へ行くことはオーナーさんやご近所に迷惑となる可能性がございますのでお控え下さい。ご連絡頂ければ日程調整の上、ご案内致します。
夏涼しく、冬暖かく、車に乗れなくても利便性が続く安曇野ライフ
築3年9か月(2月22日現在)の美邸。全室英国調ウィリアムモリス壁紙コーディネートで1階トイレ-寝室の動線や浴室、洗面脱衣室にもパネルラジエーター暖房が設置され、ヒートショックになりにくい設計です!穂高の温泉施設「しゃくなげの湯」まで1.5㎞の近さにある北アルプスの麓、別荘地内に本物件はございます。道中、山麓線と呼ばれる山裾のを南北に走る生活道路沿いには周辺地域や別荘地の方が利用する飲食店が立ち並んでおり、しゃくなげの湯の隣には農産物直売所Vif穂高があります。更にそのエリア南端には北アルプス牧場がございまして、そこのソフトクリームは現オーナーさんも大好物で、地元でも人気のお店です。又、坂を東方向に下って2.2㎞行きますと大型ショッピングセンターがあり、ホームセンターなどもございます。車で移動する距離ではありますが、安曇野市には「あづみん」と言うオンデマンド交通(乗合タクシー)が整備されており、運転に自信が無くなってきたとしても、代替手段が整っております。
室内空間のウィリアムモリス壁紙にマッチした家具や調度品などはご購入者様に無償で引き継いでも構わない旨、現オーナー様のご意向がありますので、今の雰囲気をそのまま引き継いで頂けます。建物は新築当時、オプションでSKダンパーと言う制震ダンパーを取付ましたので、地震に対しても通常プラスαの装備が付帯しております!!
酷暑の続く日本列島ですが、安曇野でも山裾の別荘地帯で森の中、夏の涼しさはピカ一です。そして今どきの建築による断熱性能とヒートショックを考えたトイレ動線や浴室の暖房設備。終の棲家として快適に安曇野ライフを楽しんで頂ける1押し物件です!!
動画で見る不動産
(株)あいさい
担当:醍醐 英治
050-3696-9382
ココスマを見てとお伝えください
地図・周辺環境
※物件位置が表示されていない場合があります。
また特に外部リンク先のGoogleマップでは、実際とは異なる位置が表示される場合があります。
物件の正確な位置は必ず取扱い会社へお問合せください。
(株)あいさい
担当:醍醐 英治
050-3696-9382
ココスマを見てとお伝えください
物件詳細
| 価格 | 3680万円 |
|---|---|
| 土地面積 | 430m²(公簿) / 130.07坪 |
| 建物面積 | 113.44m² / 34.31坪 |
| 間取 | 2SLDK(洋9,洋8,ギャラリー5.7,LDK24.8) |
| 所在地 | 安曇野市穂高有明7890番地6 |
| 通学区 | 安曇野市立穂高北小学校(4700m) 安曇野市立穂高西中学校(3400m) |
| 交通 | 電車:大糸線穂高駅 距離5300m 自動車14分 バス:中房線 バス停温泉公園北口 距離1400m 徒歩18分 最寄り駅までバス乗車4分 高速道路:長野道 安曇野I.C. 車28分 |
| 備考 | ・新築住宅会社の保証を引継ぎ、瑕疵保険、地盤保証アリ ・ハザードマップ土砂災害警戒区域(土石流)イエローゾーン ・制震ダンパー(SKダンパー制震)付 ・大型物置アリ ・西側通路は私道にて通行する権利はありません(隣接土地所有者様の私有地) ・LDK北面と東面には広範囲に鏡が設置されております |
| 建物概要 | 地上2階 |
| 駐車場 | 有 台数:3台あり |
| 下水 | 個別浄化 |
| 湯権 | 無 |
| 完成年月日 | 2022年5月 |
| 施工会社 | 秀光ビルド |
| 土地権利 | 所有権 |
| 接道状況 | 方角:東 道路幅員:4.47m 公私区分:公道 接面:15.56m 方角:西 道路幅員:4m 公私区分:私道 接面:15.35m |
| 設備 | 光ファイバー・システムキッチン・TVモニタ付きインターホン・ディンプルキー・カードキー・火災警報器(報知機)・BT別室・暖房便座・温水洗浄便座・オートバス・浴室乾燥機・バス1坪以上・トイレ2箇所・追焚機能・庭・エアコン・ウォークインクローゼット・床下収納・外物置・日当り良好・24時間換気システム・田舎リゾート向き・制震構造・建築確認完了検査済証・瑕疵保険検査基準に適合・新築時・増改築時の設計図書・修繕・点検の記録・給湯・洗髪洗面化粧台・照明器具付き・プロパンガス・複層ガラス・上水道・浄化槽・電気・駐車場3台分 |
| 取引態様 | 専任媒介 |
| 手数料 | 手数料必要 |
| 引渡し/入居日 | 相談 |
| 物件番号 | 450449 |
| 最終更新日 | 2026-04-12 |



























































