貸家 長野県安曇野市穂高有明2175-28 穂高有明トレーラーハウス南棟
- 賃料4.5万円
- 共/礼/敷-/なし/1ヶ月
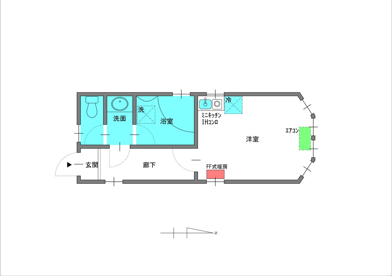
- 間取ワンルーム
- 専有面積 24m² / 7.26坪
最終更新日 2026年02月10日
天然温泉付!山麓線から入ってすぐのところです☆自然が多い場所です☆
居住専用の物件となります。天然温泉付!(屋外風呂のみ※ホースで屋内に入れることも可能)山麓線から入ってすぐのところです☆自然が多い場所です☆
スーパー・コンビニ・ホームセンターまで車で10分
M10不動産
担当:武藤 正義
0263-74-3903
ココスマを見てとお伝えください
地図・周辺環境
※物件位置が表示されていない場合があります。
また特に外部リンク先のGoogleマップでは、実際とは異なる位置が表示される場合があります。
物件の正確な位置は必ず取扱い会社へお問合せください。
M10不動産
担当:武藤 正義
0263-74-3903
ココスマを見てとお伝えください
物件詳細
| 賃料 | 4.5万円 |
|---|---|
| 礼金 | なし |
| 敷金 | 1ヶ月 |
| 間取 | ワンルーム |
| 専有面積 | 24m² / 7.26坪 |
| 所在地 | 安曇野市穂高有明2175-28 |
| 建物名 | 穂高有明トレーラーハウス南棟 |
| 備考 | ・居住専用物件となります。 ※人間の定員は3名まで。 ・トレーラーハウス寸法 短辺3m 長辺8m 居室内法:長辺約4.2m 短辺約2.8m(7帖程度) ・管理費 3,000円/月 ・温泉・下水が穂高温泉供給様の管理となり、次の費用がかかります。 温泉基本料金 4,950円/月 下水基本料金 2,640円/月 共同施設管理費および計量器使用料 月々367円(合計年4,400円) ※掛け流しをする場合等は別途費用が発生する可能性があります。 ・上水道 3,000円/月 ・車・バイク・原付等は1台につき3000円(車2台まで) ・ペットを飼育する場合は敷金・礼金1か月分がかかります。 ※多頭飼育・大型犬等相談可(1頭追加につき礼金+1ヶ月 及び 3000円/月) ・家財保険・保証会社との契約が必須となります。 ※1年以内に退去の場合、違約金1ケ月分が発生します。 |
| 建物構造 | その他 |
| 建物概要 | 平屋 地上1階 |
| 駐車場 | 有 有料一台:3000円/月 追加有料駐車:3000円/月 |
| 下水 | 公共下水道 |
| 保険 | 有 |
| トイレ | 水洗 |
| 設備 | IHクッキングヒーター・BT別室・トイレ・シャワー・エアコン・FF暖房・外物置・日当り良好・閑静住宅街・田舎リゾート向き・給湯・室内洗濯機置場・フローリング・洗面台・プロパンガス・ペット相談可・二人入居可 |
| 取引態様 | 一般媒介 |
| 手数料 | 手数料必要 |
| 引渡し/入居日 | 2025年10月中旬 予定 |
| 物件番号 | 445315 |
| 最終更新日 | 2026-02-10 |






































