中古住宅 長野県安曇野市豊科南穂高
- 価格3890万円
- 土地面積231.75m2
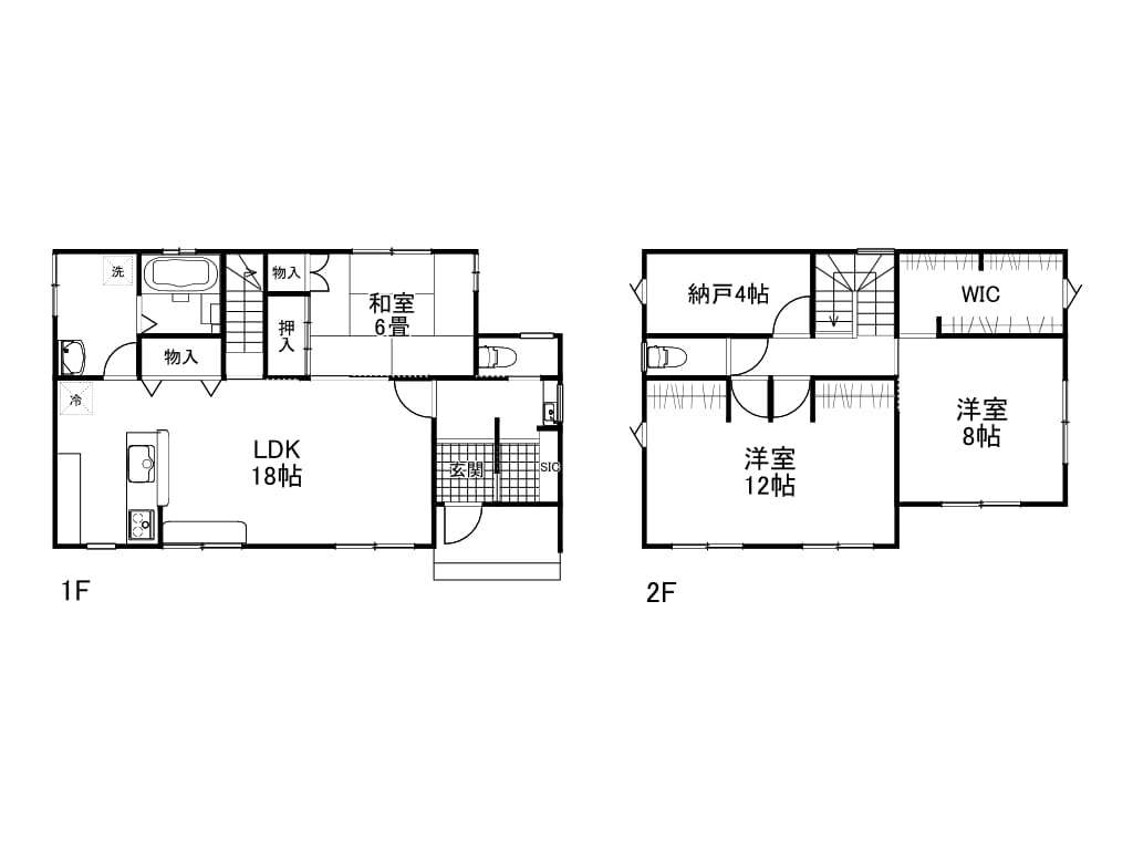
- 間取4LDK
- 建物面積118.41m2
- 通学区安曇野市立豊科北小学校(1300m)
安曇野市立豊科北中学校(1000m)
最終更新日 2025年12月26日
★2023年2月築の築浅オール電化住宅!
太陽光5.83Kw搭載の為、ランニングコストも抑えられます!
☆安曇野市の中心エリア「豊科」に立地。
駅や商業施設、国道19号が近く、安曇野インターへのアクセスも良好です♪
☆陽光がたっぷりと降り注ぐ、開放感のある南東角地。
4台分の駐車スペースがあり、来客時にも安心です。
☆家族の成長に合わせて5LDKに変更可能な4LDKの間取り。
室内物干しスペースや2階トイレも備え、暮らしやすさを考えた設計!
☆豊科北小学校・中学校まで1.5km圏内。子育て世代にも嬉しい住環境です!
居住中のため、まずはお問合せからお待ちしております!
■LOCATION●ウエルシア安曇野豊科店まで 徒歩3分(230m)
●豊科病院まで 徒歩15分(1200m)
●八十二銀行豊科支店まで 徒歩18分(1400m)
●豊科郵便局まで 徒歩18分(1400m)
●豊科シオン幼稚園まで 徒歩19分(1500m)
●イオン豊科店まで 車で4分(1600m)
●安曇野赤十字病院まで 車で5分(1700m)
●西友豊科店まで 車で5分(1900m)
●コメダ珈琲店安曇野豊科店まで 車で5分(2000m)
●カインズ豊科店まで 車で6分(2100m)
サンプロ不動産(株)
担当:萩原 真治
0120-503650
ココスマを見てとお伝えください
地図・周辺環境
※物件位置が表示されていない場合があります。
また特に外部リンク先のGoogleマップでは、実際とは異なる位置が表示される場合があります。
物件の正確な位置は必ず取扱い会社へお問合せください。
サンプロ不動産(株)
担当:萩原 真治
0120-503650
ココスマを見てとお伝えください
物件詳細
| 価格 | 3890万円 |
|---|---|
| 土地面積 | 231.75m²(公簿) / 70.1坪 |
| 建物面積 | 118.41m² / 35.81坪 |
| 間取 | 4LDK |
| 所在地 | 安曇野市豊科南穂高 |
| 通学区 | 安曇野市立豊科北小学校(1300m) 安曇野市立豊科北中学校(1000m) |
| 交通 | 電車:大糸線豊科駅 距離1500m 徒歩19分 自動車4分 |
| 備考 | ※太陽光5.83Kw搭載 ※物置及びサイクルポートあり、花壇スペースあり ※地区計画あり(新田地区) ※居住中ですが日程調整の上、ご案内可能です。 |
| 建物構造 | 木造 |
| 建物概要 | 地上2階 |
| 駐車場 | 有 台数:4台あり |
| 下水 | 公共下水道 |
| 完成年月日 | 2023年2月 |
| 施工会社 | 株式会社相模組 |
| 土地権利 | 所有権 |
| 接道状況 | 方角:東 道路幅員:6m 公私区分:公道 接面:13.1m 方角:南 道路幅員:7m 公私区分:公道 接面:12.9m |
| 設備 | システムキッチン・カウンターキッチン・IHクッキングヒーター・食器洗浄乾燥機・TVモニタ付きインターホン・暖房便座・温水洗浄便座・バス1坪以上・トイレ2箇所・追焚機能・ウォークインクローゼット・日当り良好・閑静住宅街・免震構造・給湯・複層ガラス・上水道・下水道・電気・駐車場3台分 |
| 取引態様 | 媒介 |
| 引渡し/入居日 | 相談 |
| 管理番号 | 15126 |
| 物件番号 | 445814 |
| 最終更新日 | 2025-12-26 |

















































