中古住宅 長野県安曇野市三郷明盛3361-8
- 価格1880万円
- 土地面積256.34m2
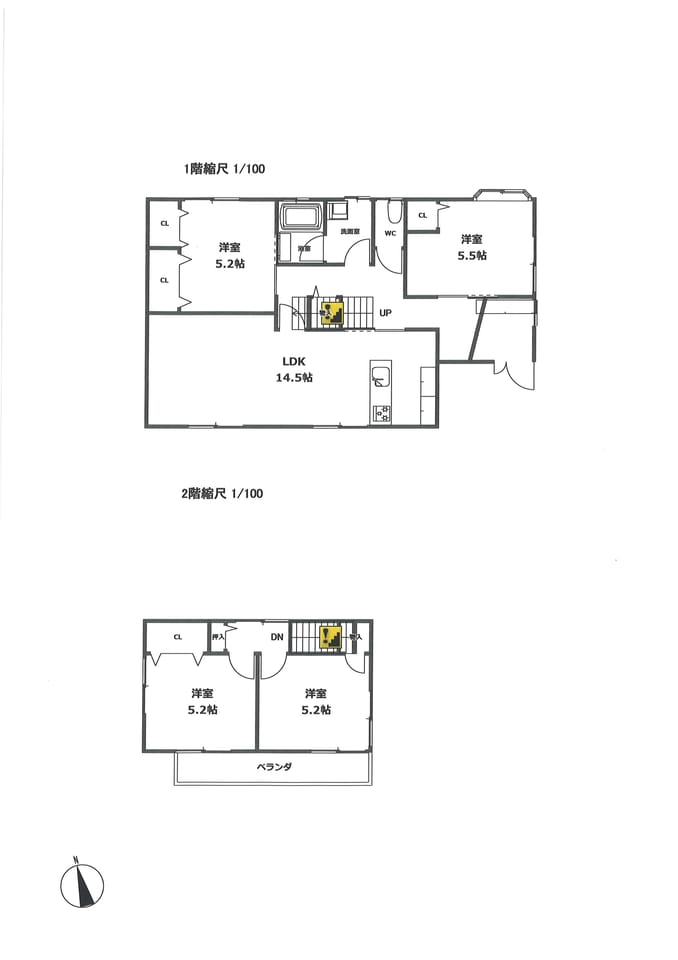
- 間取4LDK
- 建物面積107.8m2
- 通学区安曇野市立三郷小学校(2100m)
安曇野市立三郷中学校(1900m)
最終更新日 2026年03月23日
閑静な住宅街で、駐車4台可能♪間取りを考えたリフォーム済中古住宅です♪是非一度ご覧ください♪
リフォーム後、インスペクション導入予定。
中部商事(株)
0263-86-3977
ココスマを見てとお伝えください
地図・周辺環境
※物件位置が表示されていない場合があります。
また特に外部リンク先のGoogleマップでは、実際とは異なる位置が表示される場合があります。
物件の正確な位置は必ず取扱い会社へお問合せください。
中部商事(株)
0263-86-3977
ココスマを見てとお伝えください
物件詳細
| 価格 | 1880万円 |
|---|---|
| 土地面積 | 256.34m²(公簿) / 77.54坪 |
| 建物面積 | 107.8m² / 32.6坪 |
| 間取 | 4LDK |
| 所在地 | 安曇野市三郷明盛3361-8 |
| 通学区 | 安曇野市立三郷小学校(2100m) 安曇野市立三郷中学校(1900m) |
| 交通 | 電車:大糸線中萱駅 距離900m 徒歩11分 |
| 備考 | 上下水道有、プロパンガス、境界立ち合い済、固定資産税年/29,225円(令和7年分) リフォーム内容(屋根、外壁等塗装・玄関戸交換・モニターホン設置・一部窓交換・一部インナーサッシ設置・エアコン1台設置・クロス張替え・間取り変更・CF張替え・玄関ポーチ張替え・下駄箱交換・照明交換・システムキッチン・背面収納・洗面台・トイレ、ユニットバス交換・網戸張替・外構整地・一部砕石敷・下水道接続・給水管一部・不凍栓一部交換・フローリング上張り、建具等交換・TVアンテナ設置・ガス給湯器交換・ベランダ床張り替え・ブレーカーボックス・スイッチ等交換・カーテンレール交換・火災報知器設置・全室クリーニング |
| 建物構造 | 軽量鉄骨造 |
| 建物概要 | 地上2階 |
| 下水 | 公共下水道 |
| 完成年月日 | 1979年2月 |
| 土地権利 | 所有権 |
| 接道状況 | 方角:東南 公私区分:公道 |
| 設備 | システムキッチン・カウンターキッチン・TVモニタ付きインターホン・ディンプルキー・火災警報器(報知機)・BT別室・温水洗浄便座・オートバス・追焚機能・エアコン・バリアフリー・閑静住宅街・リフォーム済み・給湯・洗髪洗面化粧台・出窓・照明器具付き・プロパンガス・複層ガラス・上水道・下水道・電気 |
| 取引態様 | 媒介 |
| 手数料 | 手数料必要 |
| 引渡し/入居日 | 相談 |
| 物件番号 | 449997 |
| 最終更新日 | 2026-03-23 |






















