中古住宅 長野県北安曇郡松川村鼠穴
- 価格990万円
- 土地面積729.99m2
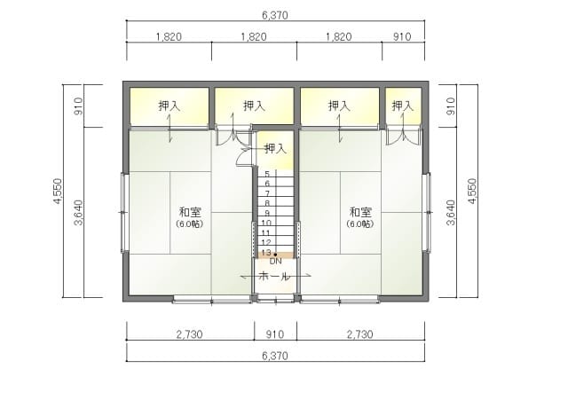
- 間取6DK
- 建物面積124.21m2
- 通学区松川村立松川小学校(5200m)
松川村立松川中学校(5100m)
最終更新日 2025年12月20日
ご見学受付中!(事前予約制)お気軽にご相談ください。
Tours are available! (Advance reservations required) Please feel free to contact us.
住みたい田舎ベストランキング』で 総合部門1位に選ばれた松川村です!!
長野県北安曇郡松川村は、『住みたい田舎ベストランキング』で総合部門1位にランクされた移住者に人気の村です。雄大な北アルプスと、「信州の富士」と地元の人たちに愛される有明山の麓に広がる美しい田園風景。この場所こそが、あなたが思い描く理想の田舎暮らしの舞台ではないでしょうか?
この中古物件は、北アルプスの山麓線沿いに建ち、ご家族でゆったり暮らすのに十分な広さを持っています。さらに、農地が付属しており、自家菜園やスローライフを満喫したい方に最適です。
思わず「お風呂が外に?」と驚くかもしれませんが、ご安心ください。中古物件の購入は、水回りを自分好みに刷新する絶好の機会です!
この機会をどうぞお見逃しなく!
Come to the #1 Ranked Village Your Dream Country Life Awaits at the Foot of the Northern Alps
Matsukawa Village in Kitaazumi-gun, Nagano Prefecture, has been crowned the Overall No. 1 Village in Japans "Best Inaka (Countryside) to Live In" ranking, making it a highly desirable destination for those seeking relocation.
This is the perfect setting for your ideal country life: a village nestled at the base of the magnificent Northern Alps and the graceful Mt. Ariake, boasting vast, beautiful pastoral scenery.
Property Highlights and Potential
This pre-owned property is located along the mountain foothills route and offers ample space for a family to live comfortably. It also includes attached farmland, making it perfect for those wishing to enjoy a home garden and a fulfilling slow life.
You might be surprised to find a unique feature—the possibility of an outdoor bathing area! But do not worry. Buying a pre-owned home is the perfect opportunity to renovate and customize the water facilities to your exact liking!
• Renovation Recommended! Seize the chance to install a brand-new, comfortable indoor bathroom and bring modern convenience to your rural retreat.
• The Joy of Creating Your Ideal Home: Utilize the spacious house and fertile land to create your vision of the perfect country home, starting from a clean slate.
The stunning natural beauty of Matsukawa Village and the vast potential of this property will help you realize a comfortable and enriching rural lifestyle.
(有)五十嵐木材
担当:五十嵐木材 不動産部
0261-22-3544
ココスマを見てとお伝えください
地図・周辺環境
※物件位置が表示されていない場合があります。
また特に外部リンク先のGoogleマップでは、実際とは異なる位置が表示される場合があります。
物件の正確な位置は必ず取扱い会社へお問合せください。
(有)五十嵐木材
担当:五十嵐木材 不動産部
0261-22-3544
ココスマを見てとお伝えください
物件詳細
| 価格 | 990万円 |
|---|---|
| 土地面積 | 729.99m²(公簿) / 220.82坪 |
| 建物面積 | 124.21m² / 37.57坪 |
| 間取 | 6DK |
| 所在地 | 北安曇郡松川村鼠穴 |
| 通学区 | 松川村立松川小学校(5200m) 松川村立松川中学校(5100m) |
| 交通 | 電車:大糸線細野駅 距離3200m 徒歩40分 電車:大糸線北細野駅 距離3500m 徒歩44分 バス:新宿〜白馬線 白馬八方BT線 バス停安曇野松川(道の駅) 距離3300m 徒歩42分 高速道路:長野道 安曇野I.C. |
| 備考 | 松川村空き家バンク登録物件 【見学予約・お問い合わせについて】 誠に勝手ながら、弊社冬季休業期間に伴い、物件のご案内は2026年1月6日(火)以降とさせていただきます。 休業期間中のお問い合わせにつきましては、1月6日より順次ご対応させていただきます。 見学をご希望のお客様は、あらかじめ「候補日時を複数」添えてお問い合わせいただけますと、年始のスムーズなご案内が可能です。ご不便をおかけしますが、何卒ご容赦ください。 【補強/メンテナンス等履歴】 ・耐震補強装置取付 2000年6月 ・基礎部補強装置 2000年6月 ・温水ルームヒーター 1999年1月 ・床下メンテナンス工事(白蟻/害虫/モグラ駆除)2004年7月 ・瓦吹付工事 2002年6月 ※所有者聞取のため、時期は前後している可能性があります。 【 周辺環境情報 】 ■松川村役場・・・約5.1km/車 6分 ■北アルプス医療センターあづみ病院・・・約6.4km/車 16分 ■細野簡易郵便局・・・約3.4km/車 9分 ■安曇野ちひろ公園・・・約3.6km/車 9分 ■西友松川店・・・約5.4km/車13分 ■ツルヤ池田店・・・約7.8km/車 20分 ■セブンイレブン松川細野店・・・約3.4km/車 9分 ■コメリ松川店・・・約4.1km/車 10分 ■人気のカフェ ティータイム ガルニ・・・約2.4km/車 6分 【その他条件】 ・農地が付属します。 1.畑 192㎡ 2.田 664㎡ 3.田 152㎡ 宅地と原野 1. 宅地 729.99㎡ 2. 宅地 77.4㎡ 3. 原野 268㎡ ・未登記付属建物あり 1.車庫 2.倉庫 3.浴室 ・境界確定測量及び表題登記訂正は、引渡までに売主負担で行う ・残置物は売主負担で撤去済み ・農地法3条転用手続きは買主負担 現況有姿(現状渡し)によるお引渡しのため売主の契約不適合責任免責 |
| 建物構造 | 木造 |
| 建物概要 | 地上2階 |
| 駐車場 | 有 台数:複数台あり |
| 下水 | 公共下水道 |
| 完成年月日 | 1978年10月 |
| 土地権利 | 所有権 |
| 接道状況 | 方角:東 公私区分:私道 |
| 耐震 | 耐震補強済 耐震補強:部分施工 |
| 設備 | 外物置・日当り良好・田舎リゾート向き・空き家バンク登録物件・給湯・照明器具付き・プロパンガス・上水道・下水道・駐車場3台分 |
| 取引態様 | 専任媒介 |
| 手数料 | 手数料必要 |
| 引渡し/入居日 | 相談 |
| 管理番号 | MK2-052 |
| 物件番号 | 447612 |
| 最終更新日 | 2025-12-20 |






























